Objednávkové číslo: 02.71.19.100
Závesná celonerezová kompaktná umývacia stanica KOMPAKT 3v1 P
Závesná celonerezová kompaktná umývacia stanica KOMPAKT 3v1 P predstavuje moderné hygienické riešenie, ktoré v jednom zariadení spája bezdotykové umývanie rúk, automatické dávkovanie tekutého mydla a hygienické sušenie rúk pomocou integrovaného zásobníka papierových utierok. Je ideálnym riešením pre priestory, kde je preferované mechanické sušenie rúk z hygienických alebo prevádzkových dôvodov.
Všetky funkcie sú ovládané prostredníctvom optoelektronických snímačov reagujúcich na prítomnosť rúk v zóne dosahu. Riadiaca elektronika zabezpečuje vzájomné blokovanie funkcií, aby nemohlo dôjsť k ich nechcenému súbežnému spúšťaniu.
Teplota vody sa nastavuje pomocou termostatického zmiešavača umiestneného vo vnútri nerezovej konštrukcie, čím je zabezpečený vysoký komfort a bezpečnosť používateľa. Zariadenie je vybavené samostatnou optikou s dlhým dosahom, ktorá slúži na automatické zapínanie a vypínanie ambientného podsvietenia pri príchode a odchode používateľa do alebo zo zóny snímania.
Zrkadlová plocha je vyhotovená z vysoko leštenej nehrdzavejúcej ocele AISI 304 BA (Super Mirror), ktorá poskytuje vynikajúce optické vlastnosti, dlhú životnosť a vysokú odolnosť aj pri intenzívnom používaní.
Zariadenie disponuje automaticky prednastaveným adaptívnym hygienickým preplachom s periódou každých 72 hodín, ponúka možnosť spustenia termickej dezinfekcie a zároveň archivuje prevádzkové štatistiky, vďaka čomu je ideálnym riešením pre verejné a vysoko zaťažované priestory.
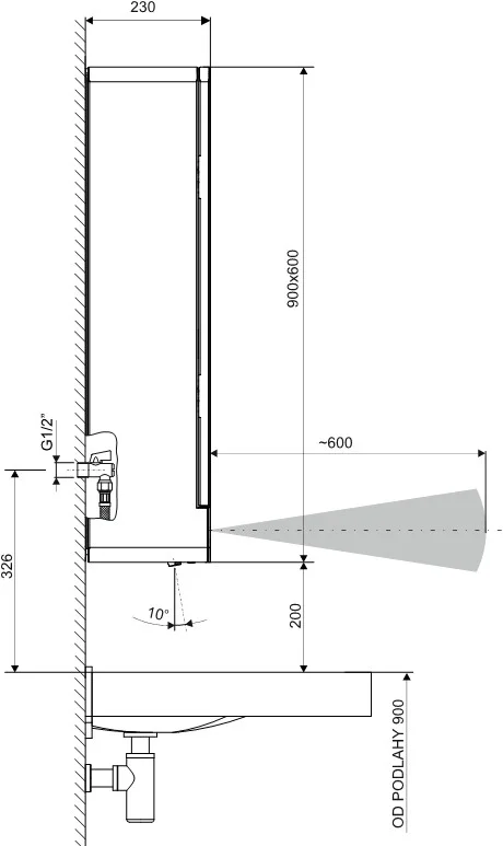
Základné parametre
- Materiál konštrukcieNerez A304 SB
- Materiál zrkadla Nerez AISI 304 BA (Super Mirror)
- Povrchová úprava Práškové lakovanie, RAL 9010
- Rozmery600 × 800 × 230 mm
- Napájanie 230 V / 50 Hz
- MontážNástenná – montáž na nosné lišty
- KapacitaMax. 400 ks papierových utierok
- Prietok vody 2,8 l/min
- Pracovný tlak 0,5 – 10 bar
- Odporúčaný tlak 1 – 5 bar
- Maximálna teplota studenej vody25 °C
- Maximálna teplota teplej vody75 °C
- Nastavenie parametrovDiaľkový ovládač DO-5.1














